
- Bedrooms: 5
- Bathrooms: 7
- Year: 2012
Designed to combine indoor and outdoor living spaces seamlessly, South African SAOTA Architects, in collaboration with Antoni Associates, were appointed to create this bespoke luxury home. Inspiring a sensation of breathtaking architectural achievement, the residence is the epitome of incomparable luxury design with the creative flair and vestiges of modern contemporary living.
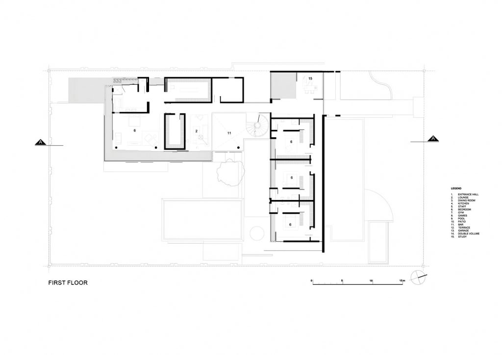
Situated on a gentle slope surrounded by trees in the Johannesburg suburb of Houghton Estates, this u-shaped home is organized around an inner courtyard, allowing privacy for the pool and easy access to the living spaces. An impeccably crafted fully curved staircase cascades between the upper and lower levels with glass railing, creating a focal point of luxurious distinction within the geometric equilibrium of the cubed structure.
This stunning luxury residence features floor-to-ceiling windows overlooking the pool courtyard with large shutters that, when open, make the separation between indoor/outdoor living disappear entirely. Seldom do you find such an astounding sense of open-air intimacy with a predisposition of luxury living beyond the normal expectations of style and the musings of an affluent life.
- Architect: SAOTA
- Designer: ARRCC
- Photography: Elsa Young






















