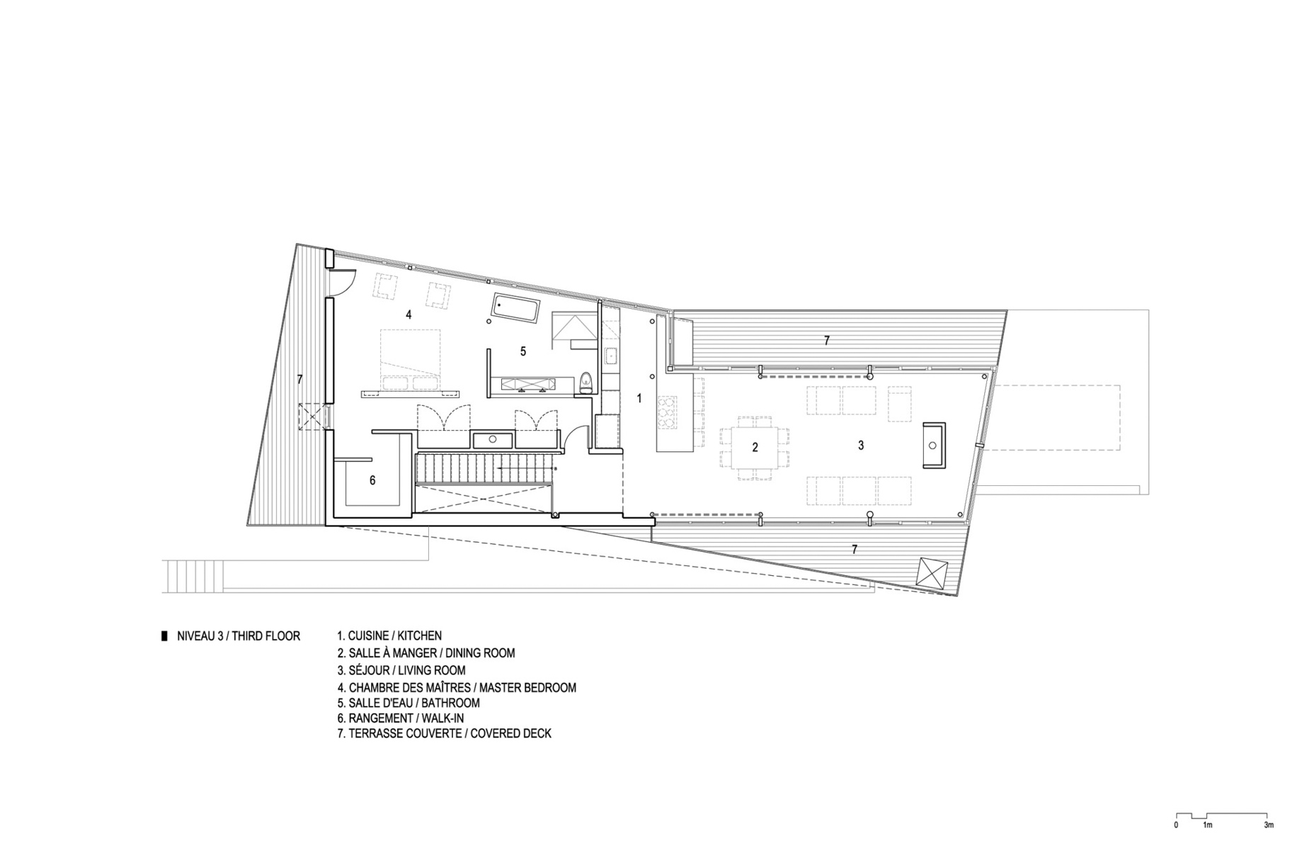
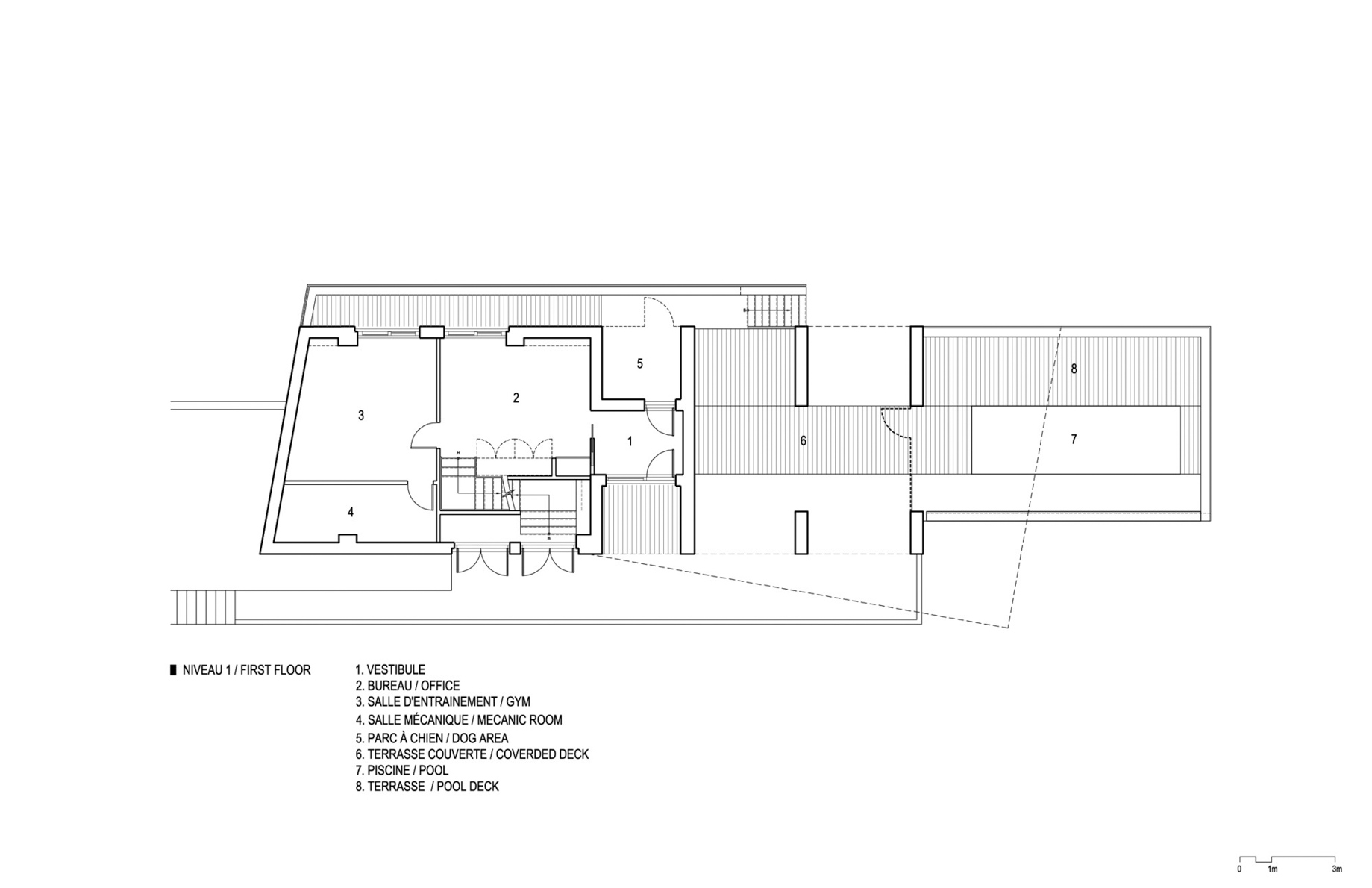
Residence the Grands Jardins – Petite-Rivière-Saint-François, QC, Canada – Floor Plan The Pinnacle List Source Shuffle Attached to: Residence the Grands Jardins – Petite-Rivière-Saint-François, QC, Canada 🇨🇦