
- Type: Modern Contemporary
- Bedrooms: 3
- Bathrooms: 4
- Built: 2019
This exquisitely designed modern contemporary luxury Villa is located in the PGA Catalunya Resort in Girona, Spain. Set upon a narrow plot, where golf and forest views are facing against the proper sun orientation, the exclusive property offers a true feeling of being in the nature.
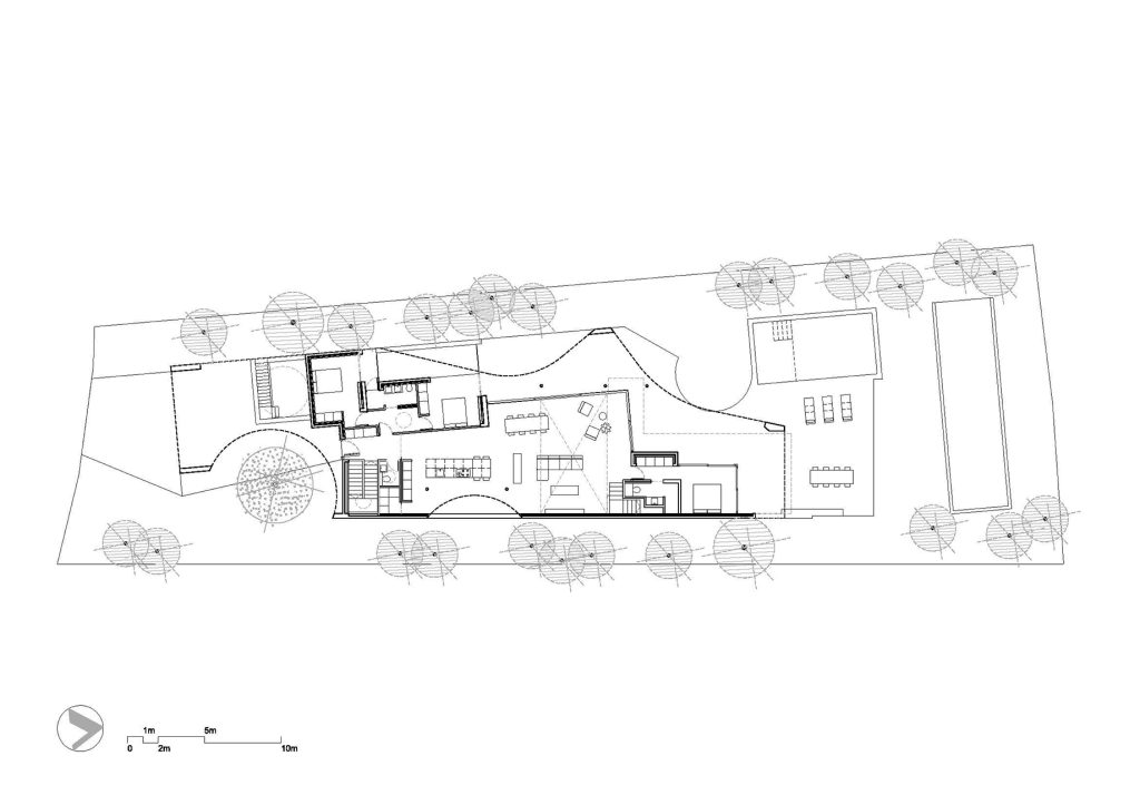
The villa design can be described as a procedure that was totally focused on the optimization of the site specificities. The first one aims at obtaining better view orientation and privacy. So, the general volume grows from one level in front of the residence to two storeys in the front.
The second main operation of the house aims to provide sun, far and lateral views and a feeling of privacy through a series of contrasted curved subtractions on the wedged volume. Each one of those has a clear target, and operates freely on the volume, changing locally the conditions of the space. Even we can think on list the objectives for every void. Some of them are general operations to provide sense of entrance, lateral views, give light to the kitchen courtyard, or open to the afternoon sun views. Other, smaller or secondary contribute with phenomenological effects to the quality of the interior, porches or intermediate spaces of the house.
Those two operatives had an echo on the structural and constructive systems of the project. So, the white holey volume is sustained with two different types of structure. Part of it is relevant on the main volume; part is through as furniture, slender to be part of the carpentry world. Ideally, it can even be moved.
- Architect: Lagula Arquitectos
- Photography: Adria Goula
- Location: PGA Catalunya Resort – Caldes de Malavella, Girona, Spain














