
- Name: Groveland House
- Type: Modern Contemporary
- Bedrooms: 7
- Bathrooms: 8
- Size: 10,291 sq. ft.
- Lot: 0.62 acres
- Built: 2014
This modernist architectural masterpiece was designed to maximize the sweeping views of Downtown Vancouver and Pacific Ocean, but the Groveland House offers more than just that โwowโ factor, it also delivers an exquisite luxury living experience with spacious interiors and functional spaces.
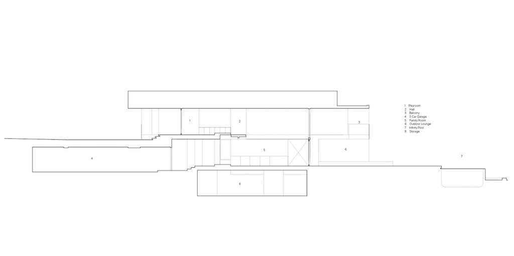
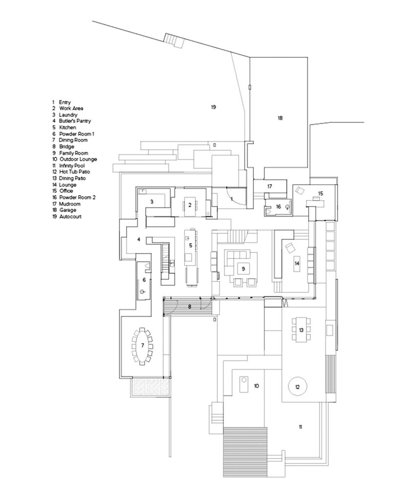
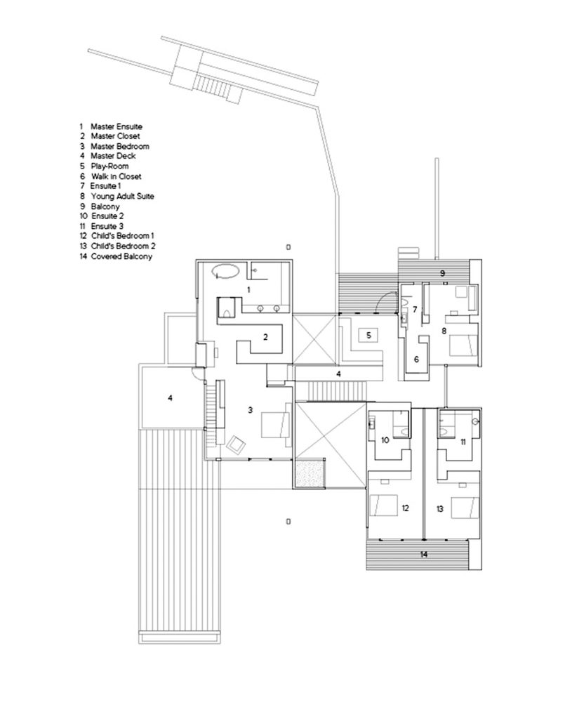
Located on a gentle three-story sloping lot in the exclusive British Properties enclave of West Vancouver, the site offers significant connections to grade on all levels of the house with a putting green on the upper floor, pool and entertainment on the middle level and more intimate views to natural bedrock al the lower level.
A wide footprint and generous building area allow the central living portions of the house to expand into double-height spaces. These tall spaces interact with a large roof plane with a shaped underside. This roof acts to bind the house together and create diverse, deep covered exterior spaces at all levels.
- Architect: Mcleod Bovell Modern Houses
- Builder: Rimrock Developments
- Photography: Ema Peter
- Location: 31071 Groveland Road, West Vancouver, BC, Canada





















