
- Name: Luxury Residential Villas
- Type: Modern Contemporary
- Bedrooms: 5
- Bathrooms: 6
- Levels: 2
- Size: 12,916 sq. ft.
- Built: 2014
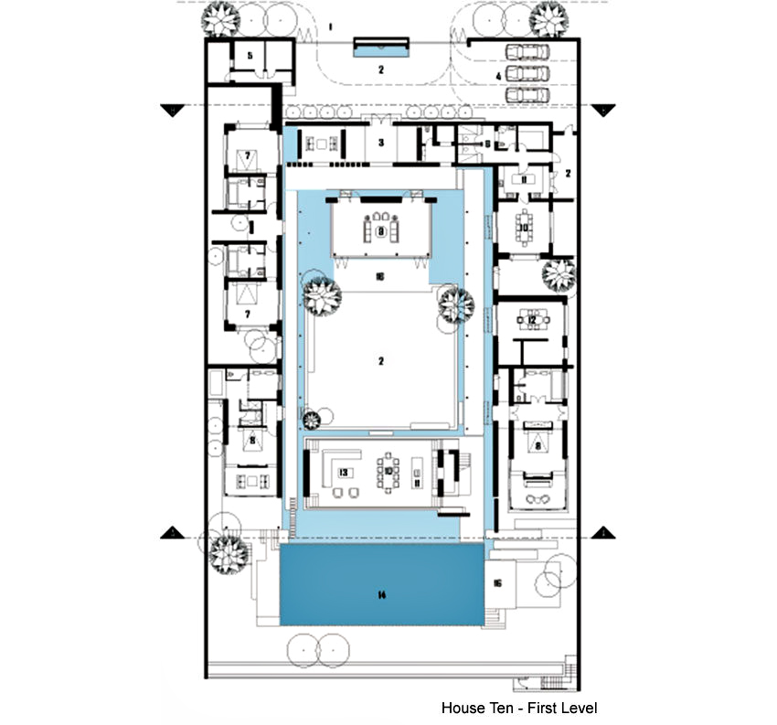
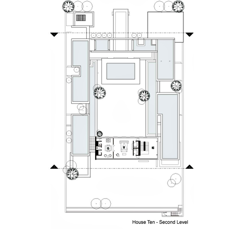
The Chenglu Luxury Sea View Villas are built with a transparent structure that blurs the boundary of the building itself with interior spaces and exterior landscaping that flows between curtain walls. The interior area intrudes on the outside orientation creating an integrated architectural design that is substantially trans-boundary providing an all-dimensional sea-view experience.
The villas share a similar configuration standard with sets of parallel masses forming perpendicular volumes enclosing a square courtyard arrangement enjoying the widest possible sea-view horizontally. Further uprising of the mass facing the sea in the front of the structure and lowering the outdoor space into a pedestal design, enhances the views facing the ocean. Several semi-outdoor platform terraces facing the ocean are created out of building eaves and stilt, serving as functional expansions of the indoor spaces. The level of luxury within these residences is exceeded only by the sheer elegance of the architecture.
The Chenglu luxury sea view villas are located in the Qingshui Bay International Resort area of Lingshui County in the southeast section of Hainan Island in China. Part of Greentown Hainan Blue Bay Town Project comprising of 12 villas in total, House 9 and House 10 represented in this portfolio are located adjacent to the Central Street area in a spectacular beach front setting.
- Architect: gad – Greentown Architecture Design
- Photography: Zhao Qiang
- Location: Lingshui, Hainan, China




























