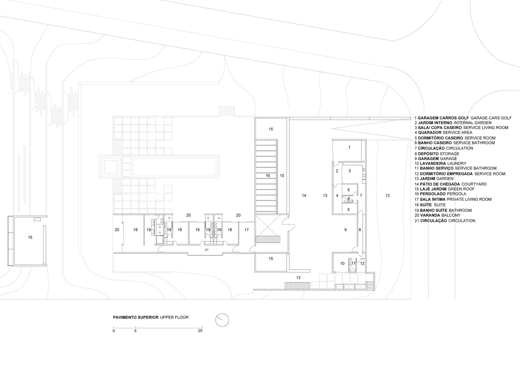
CT House Contemporary Residence – Bragança Paulista, Brazil – Floor Plan The Pinnacle List Source Shuffle Attached to: CT House Contemporary Residence – Bragança Paulista, Brazil 🇧🇷