
- Type: Modern Contemporary
- Bedrooms: 3
- Bathrooms: 5
- Size: 4,150 sq. ft.
- Built: 2019
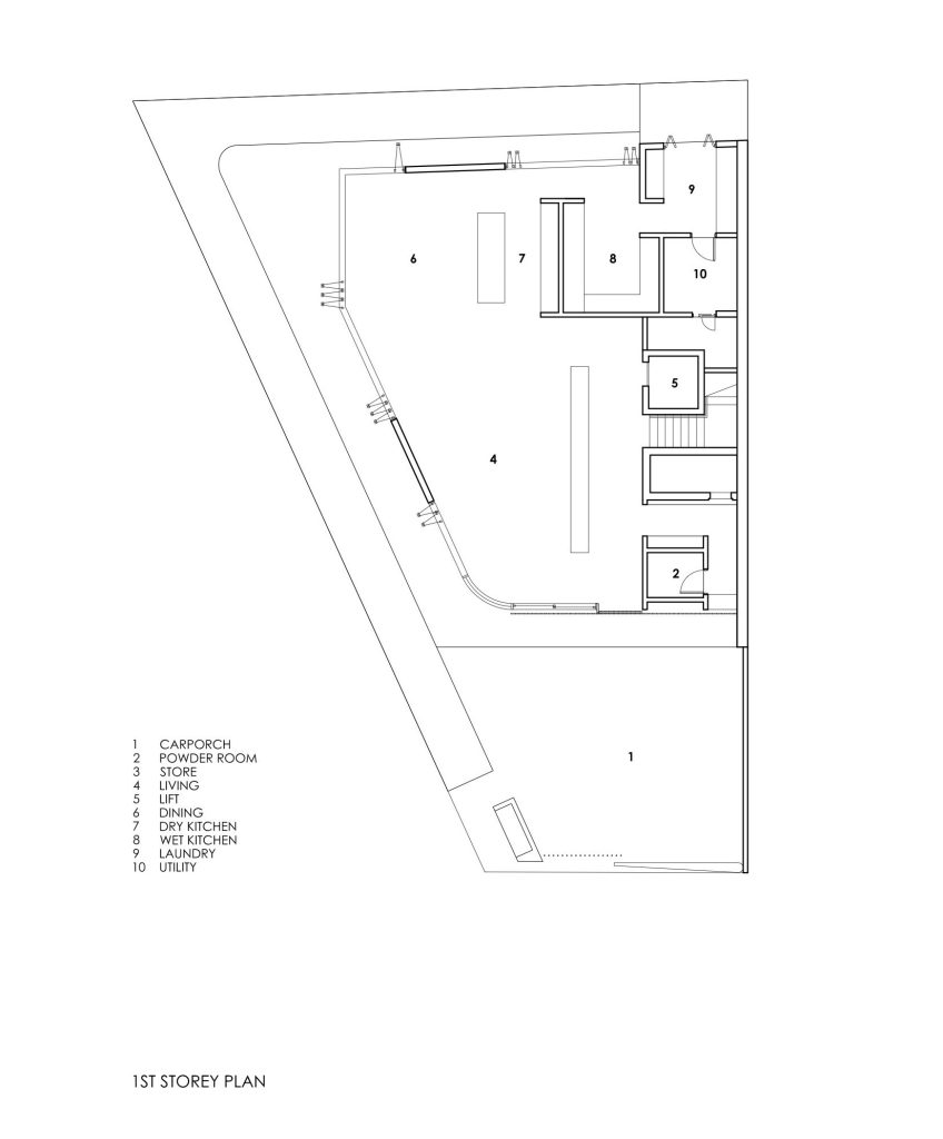
The Bamboo Veil House is a semi-detached luxury residence that sits on a bend in a street, resulting in a triangular plot with a narrow frontage. It is a minimalist tropical house with a wide social space on the ground floor for family and friends to gather. This is a private yet modern home that responds to Singaporeโs dense urban environment and tropical climate. The spatial requirements of the residence where arranged into the odd-shaped triangular plot. The ground floor was kept for dining and entertaining, bedrooms on the second floor and a study and family room on the attic level.
Responding to the site with both form and function, the bamboo screen was conceptualised as a veil, wrapping around the building in a single continuous โclothโ. A unifying element, the bamboo screen flows around the rounded edges of the faรงade, creating a soft and organic layer sandwiched between the defined white eaves. The rounded edges of the faรงade respond to the street bend, such that when one approaches from the bend, one is greeted by a bamboo veil that shields its occupants from prying eyes. The natural colour of the bamboo against the white backdrop further accentuates the dominance of the veil.
When night falls, the house becomes a beacon along this street. Prominently situated at the turn, it glows like a delicate bamboo lantern. Light spills out from inside between the bamboo fingers, creating an interesting play of light and silhouette. Closely spaced, the screen offers privacy in both day and night. The screens can be closed in daytime to filter sunlight or opened for an unobstructed view. At night, the screens are closed for a sense of privacy and intimacy.
For an effective tropical response, the faรงade was designed as a double skin. The outer skin comprises of the operable vertically laid bamboo screen and serves both privacy and solar protection functions. The inner skin is made up of aluminium-framed glass windows, allowing for natural ventilation in an all-weather condition or closed for air-conditioning on hot and humid days. The design offers flexibility for natural ventilation without compromising privacy, fulfilling the expectation of a tropical modern home. The bamboo veil thus acts as both a breathing faรงade and a privacy screen.
Singapore design architect for tropical modern landed houses and residential projects.
- Architect: Wallflower Architecture + Design
- Photography: Mark Tey Photography
- Location: 12 Coronation Dr, Singapore 269567























