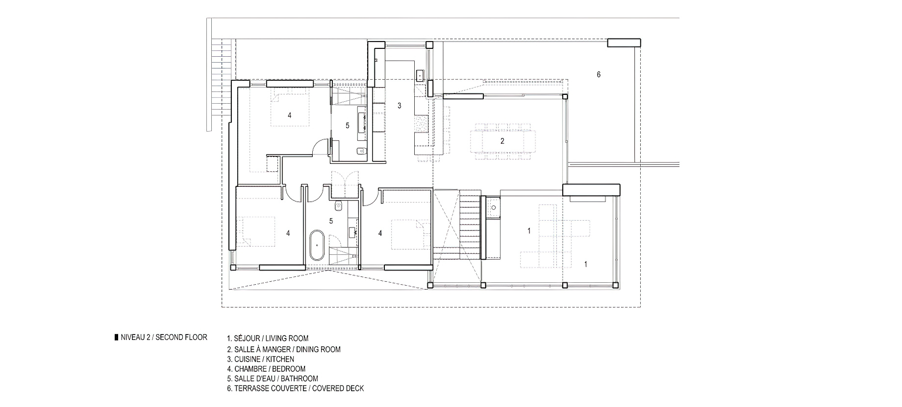
Villa Vingt Residence – Lac-Beauport, QC, Canada – Elevations The Pinnacle List Source Shuffle Attached to: Villa Vingt Residence – Lac-Beauport, QC, Canada 🇨🇦