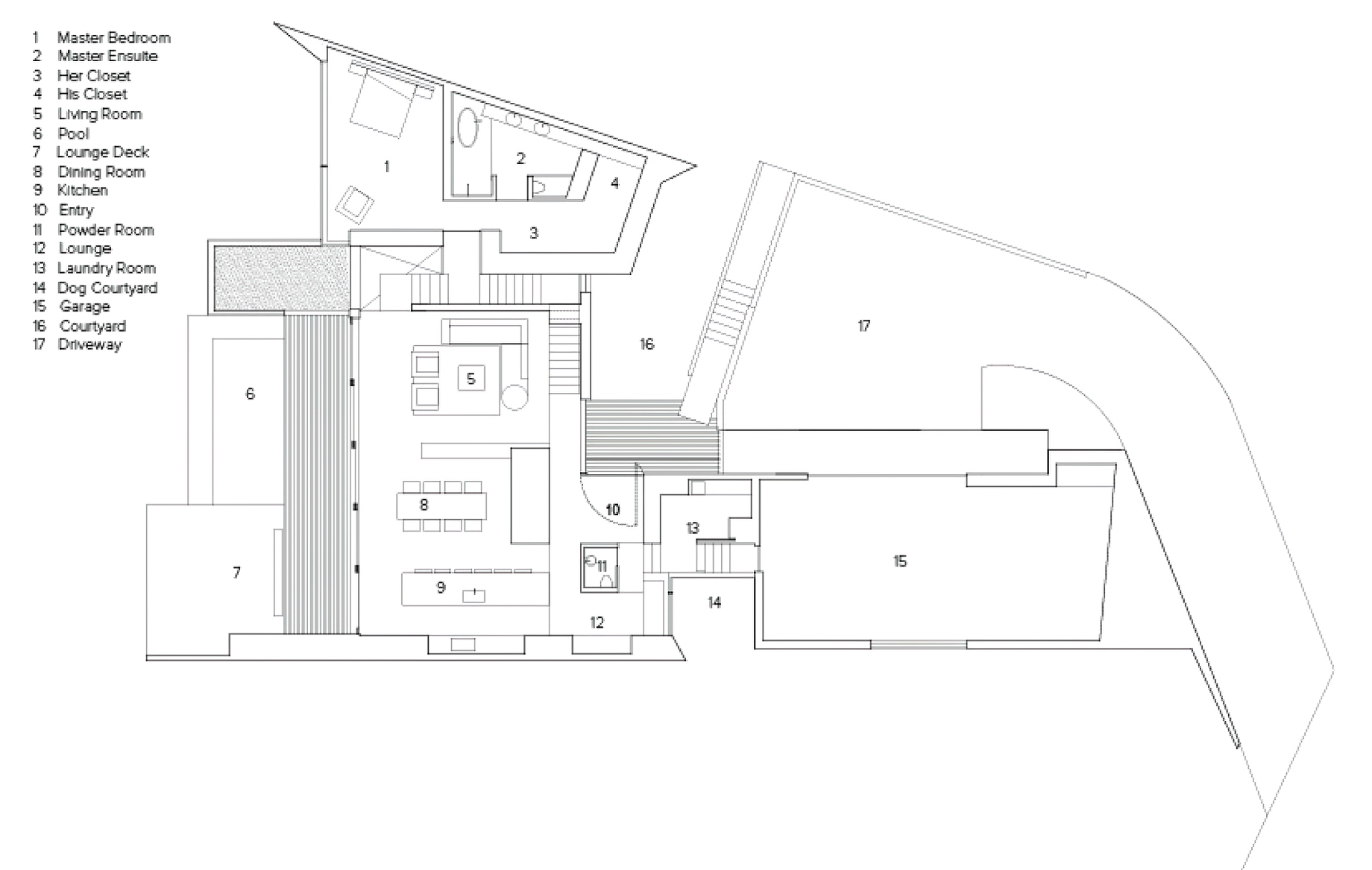
Floor Plans – Sunset House Modern Organic Minimalism – West Vancouver, BC, Canada The Pinnacle List Source Shuffle Attached to: Sunset House Modern Organic Minimalism – West Vancouver, BC, Canada ๐จ๐ฆ