
- Bedrooms: 5
- Bathrooms: 5
- Size: 5,920 sq. ft.
- Built: 2010
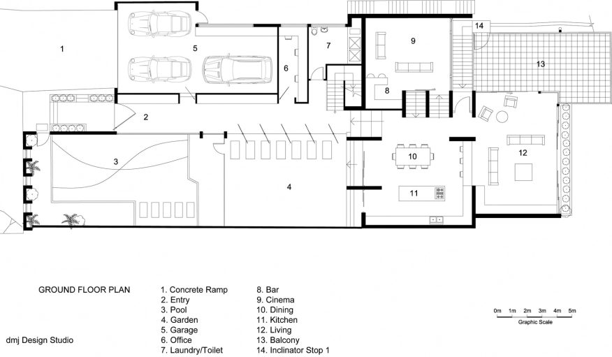
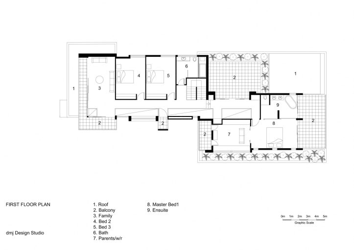
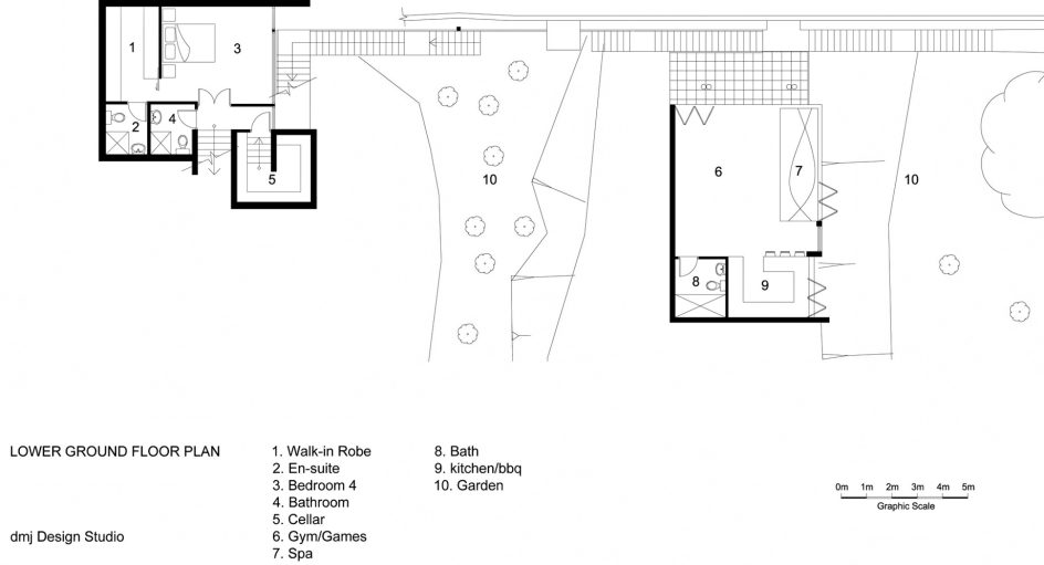
Located in the Kangeroo Point suburb of Southern Sydney, this luxury 5,920 sq. ft. residence was designed for owners that wanted a prestigious absolute waterfront home set in a prominent position overlooking the sparkling waters of the Georges River, while also offering bilateral eastern water views of the scenic Oyster Bay inlet.
Designed to offer a waterโs edge alfresco luxury lifestyle, water elements such as a designer pool are combined with a proliferation of open spaces incorporated in every part of the residence that interacts with the outside surroundings, drawn in as a natural extension of the interior creating a unique experience of harmonious equilibrium with the environment.
Composed of three juxtaposed open-frame cube volumes linked by a straight circulation axis, the project was developed over three levels along a steep hillside. The building scheme is repeated on the ground floor and first floor with variations in size and materials. At the same time, large glazed openings separate the different volumes of the residence, providing an abundance of sun-drenched living areas with spectacular water views.
- Architect: DMJ Design Studio
- Interior Design: Diego Jaime
- Photography: IMAGEination & C. Ocampo



















