
- Name: S House
- Type: Modern Contemporary
- Bedrooms: 7
- Bathrooms: 8
- Size: 8,072 sq. ft.
At first glance, the S House residence appears as if it is a hovering horizontal prism, emphasized by a double skyline, above and below. A second glance seeks out the meeting of the prism with the ground, attempting to decipher the system of physical balance that allows the composition to float while being anchored, as it were, to a horizontal concrete wall resting on a steel beam hovering above an English garden. The result is a choreographed construction held eternally in a gravity-defying pose.
The levitation of the prism, formed by clean lines, dictates the entirety of the grounds and entrance by way of transparent partitions of different types – dropping down toward and marking the ground. As such, the public spaces of the home – the dining room, kitchen, living room, garden and decorative pool – have their inner and outer boundaries entirely blurred. Similarly, the entrance from the street prepares the visitor for the โspace vesselโ with the aid of shutter-like walls of wood – forming an outdoor lobby – barely visible from the street and open to the interior of the house. A lobby which is built in proportion to the salon, inchoate as it were, formed by an additional mass of concrete that further amplifies the hovering prism.
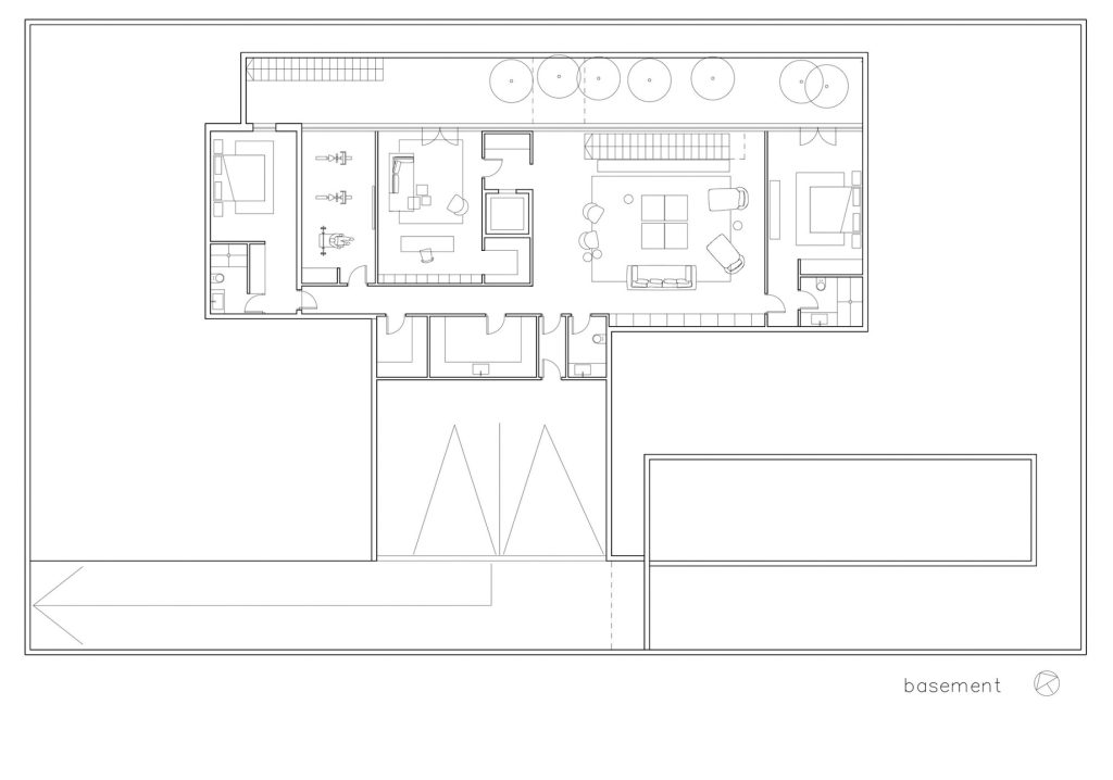
The design of the lower floor is separate from the prism above, yet nonetheless balances it through cross sections with a certain constructive functionality. It is indeed a counterweight, a balance sheet or even technical anchor in every sense. It gives shelter to intimacy and privacy, housing the bedrooms and managing the inverted relationship to the environment, thereby establishing that this house is not only a virtuous object but a space around which life is calculated.
- Architect: Pitsou Kedem Architects
- Photography: Amit Geron
- Location: Herzliya, Tel Aviv, Israel




































