
- Name: Preston Hollow Residence
- Type: Modern Contemporary
- Bedrooms: 4
- Bathrooms: 6
- Size: 9,283 sq. ft.
- Lot: 1.56 acres
- Built: 2017
A spectacular modern interpretation of brutalist architecture, the Preston Hollow residence blurs the lines between indoors and out with a floating pavilion roof that hovers over the interior and exterior spaces while sliding glass panels and corrugated concrete walls define its courtyards. The house is open and light-filled yet provides seclusion from the street.
“It’s right in the middle of the city, yet you really can’t perceive any other houses.” – Scott Specht, principal architect
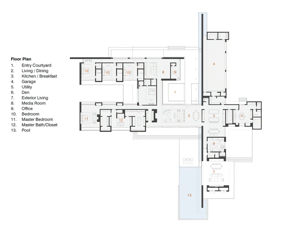
The entry courtyard at the Preston Hollow residence includes an impluvium – a rainwater collector and planting bed based on a feature of the traditional Roman house. The roof opening also brings in a lot of natural daylight. Filled with natural light and nature, this stunning center courtyard beautifully showcases the incredible art inside the home from the outdoors.
Water helps link the exterior and interior spaces. A narrow channel, punctuated by cascading terraces and a gentle waterfall near the main entry, flows through the house and into the swimming pool. At night, lighting within the stream casts changing patterns on the textured walls.
The concrete walls were cast using custom formwork that creates a corrugated appearance on one side while remaining smooth on the other. Unlike the brutalist architecture of the 1960s, however, the monolithic walls are countered by delicate steel columns, frameless windows, and flowing water where the pool and the house flow together in true modernist-style.
- Architect: Specht Architects
- Designer: Magni Kalman Design
- Landscape: David Hocker
- Builder: Sebastian Construction
- Photography: Casey Dunn
- Location: 4644 Miron Dr, Dallas, TX, USA






























