
- Name: Silverado Estate
- Type: Modern Contemporary
- Bedrooms: 6
- Bathrooms: 8
- Size: 8,262 sq. ft.
- Lot: 60 acres
- Built: 2014
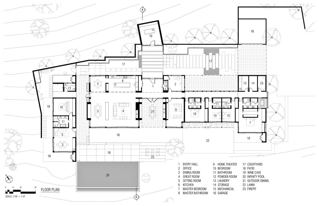
The Silverado Estate is a one-of-a-kind luxury home that features a sleek modern architectural design aesthetic that blends over 8,000 sq. ft. of interior spaces with the outdoors through floor to ceiling glass windows and nearly 3,000 square feet of covered porches and terraces. Located on a dramatic 60-acre property atop the hills in the heart of Oakville, in Californiaโs renowned Napa Valley, where a reputation for producing some of the finest wines in the world is ever-present with neighboring winegrowers, including Robert Mondavi, Opus One, Screaming Eagle, Bond and Harlan.
The main house features an elegant courtyard water feature, four bedrooms, four and a half baths, a great room with fireplace, dining and family rooms, a surround sound home theater, office, an infinity edge pool, and a 2000-bottle wine cave carved directly into the hillside. The master suite houses an indulgent steam shower and soaking tub. Centralized controls make simple work of adjusting lighting, music, temperature, security and automatic louvers and shades throughout the home. Additional Green features include an electric car charging station, solar array, reverse-osmotic water filtration, central air conditioning and radiant heating.
The adjacent guesthouse features one bedroom, one bath, living and dining room, kitchenette, outdoor shower and pool bathroom with sweeping views of Napa Valley. Also located on the estate grounds are a separate guest retreat with one bedroom, one bath, a living room, full kitchen and family room. A well-sited infinity pool creates a quintessential sense of reflection and spatial extension, mirroring the dramatic skies and sweeping vistas over the Napa Valley. This truly glorious estate revels in the serenity of its place.
- Architect: John Maniscalco Architecture
- Photography: Joe Fletcher
- Location: 7830 Silverado Trail, Napa, CA 94558, USA



































































































