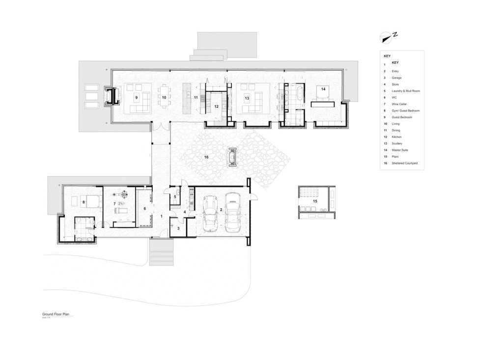
Bendigo Terrace House, by Condon Scott Architects, is a striking architectural statement that harmonizes with its rugged surroundings. The home is positioned on a vineyard in the foothills of the Dunstan Mountains, capturing uninterrupted views across the Pisa Range while balancing the demands of the region’s extreme climate. The design embraces a minimalist philosophy, distilled into two floating linear planes, the floor and roof, linked by fully glazed walls that dissolve the boundary between indoors and out. A cantilevered concrete slab gives the home an appearance of hovering above the rocky terrain, while an H-shaped configuration creates sheltered courtyards and terraces that provide refuge from Central Otago’s powerful winds. Passive solar principles drive the home’s energy efficiency, with extended rooflines mitigating summer heat and allowing winter sunlight to warm the interior’s high-thermal-mass materials.

- Name: Bendigo Terrace House
- Bedrooms: 2
- Bathrooms: 3
- Size: 4,111 sq. ft.
- Lot: 46.5 acres
- Built: 2022
Situated in the rugged landscapes of Bendigo, Central Otago, Bendigo Terrace House is a striking architectural response to its surroundings. Designed by Condon Scott Architects, the home is positioned on an elevated site above Lake Dunstan, with panoramic views over the Pisa Range and the adjacent vineyard. The design prioritizes a seamless connection to the environment, utilizing a minimalist approach that emphasizes open plan living and expansive glazing. Two linear planes, roof and floor, extend beyond the glass walls to create sheltered outdoor spaces, while a cantilevered concrete slab gives the illusion of the home floating above the rocky terrain. The H-shaped layout forms a series of courtyards and terraces, offering protection from Central Otago’s extreme winds while allowing uninterrupted views of the evolving vineyard below.
The material palette is deeply rooted in the regional landscape, incorporating locally sourced schist and vertical cedar cladding that echo the area’s natural tones. Inside, polished concrete floors provide thermal mass, while dark-stained timber and veneer elements define private spaces within the open layout. A timber batten ceiling in the living area introduces warmth and enhances acoustics, complementing the central schist fireplace. The house was completed in stages, beginning with the main living pavilion and master suite, followed by the eastern wing containing guest accommodations, a wine cellar, and utility spaces. A fully glazed gallery connects the two sections, reinforcing the home’s transparency and inviting the landscape inward. Retractable walls throughout allow the interior to merge effortlessly with the outdoors, making the most of the region’s warm summers while ensuring shelter during the colder months.
Designed to withstand the area’s climate extremes, the home incorporates passive solar strategies to optimize year-round comfort. Overhanging eaves provide shade in summer while allowing winter sunlight to penetrate and warm the interior. The roof structure, engineered with concealed bracing, maintains an unbroken ceiling plane, enhancing the sense of openness. Despite pandemic-related delays, the project was successfully completed over two and a half years, with the clients remaining actively involved from overseas. As the surrounding vines have matured, the home has settled into its environment, embodying a refined balance between architecture and landscape.
- Architect: Condon Scott Architects
- Builder: Hudson Builders
- Photography: Simon Larkin
- Location: 145 Lakefront Terrace, Northburn 9383, New Zealand























