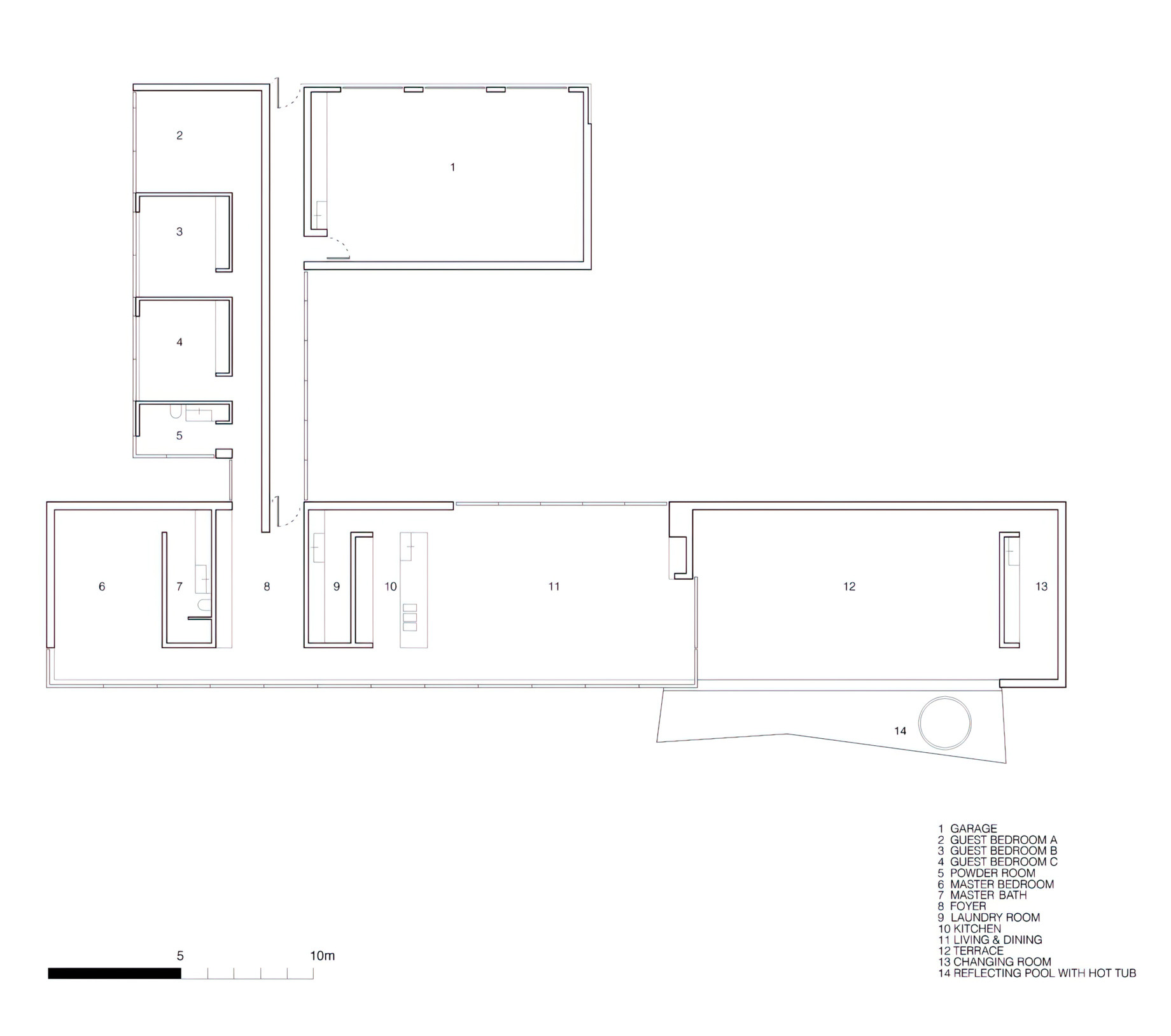
Arborg Hvíta River Vacation House – Selfoss, Iceland – 44 The Pinnacle List Source Shuffle Attached to: Arborg Hvíta River Vacation House – Selfoss, Iceland 🇮🇸