Viglostasi Residence by Block722 Architects is a family holiday home with a masterful arrangement of low, orthogonal stone and wood volumes, spread across multiple levels to accommodate the steep incline of the site. Its intelligent layout maximizes natural light and views of the Mediterranean, while interconnected pathways link the residence’s terraces, patios, and gardens, creating a fluid transition between indoor and outdoor spaces.

- Name: Viglostasi Residence
- Bedrooms: 6
- Bathrooms: 6
- Size: 5,381 sq. ft.
- Built: 2023
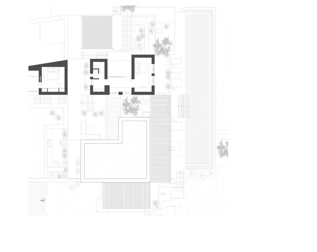
Situated on the rocky slopes of Greece’s Cycladic Island of Syros, Residence Viglostasi is an elegantly designed private holiday home crafted by Athens-based Block722. Drawing inspiration from traditional Aegean villages, the home features low, orthogonal volumes that sprawl across the hillside, offering expansive views of the Mediterranean. Spanning 500 square meters, the complex connects the main house, guest suites, terraces, gardens, and a stunning infinity pool through a series of meandering pathways, perfectly suited for a slow, indoor-outdoor lifestyle. The design seamlessly integrates with the natural landscape while providing modern comfort, fulfilling the family’s vision for a tranquil retreat.
This sophisticated residence features a primary suite, a secondary bedroom, and open-plan living spaces that exude quiet luxury. The use of natural materials like Olympus marble, travertine stone, and oak wood enhances the home’s gentle aesthetic. Bespoke joinery, traditional shutters, and a green roof add subtle elegance. The family can enjoy a gym and yoga terrace discreetly tucked under the pool area, providing private spaces for wellness and relaxation, all while maximizing the unique terrain’s long views from almost every corner of the property.
Designed as a family retreat from daily life, Residence Viglostasi epitomizes the blend of thoughtful architecture and functional design that reflects the calm, slow-paced lifestyle of the Cyclades. The residence perfectly balances private and communal spaces, with its infinity pool, lounge terrace, and the family’s private cove for swimming and yacht mooring. Block722 has once again mastered the art of creating a home that feels at one with its environment while catering to the luxurious needs of modern living.
- Architect: Block722 Architects
- Photography: George Pappas, Ana Santl
- Location: Syros Island, Greece















































