
- Name: Kit Kat House
- Bedrooms: 10+
- Bathrooms: 10+
- Size: 14,703 sq. ft.
- Built: 2022
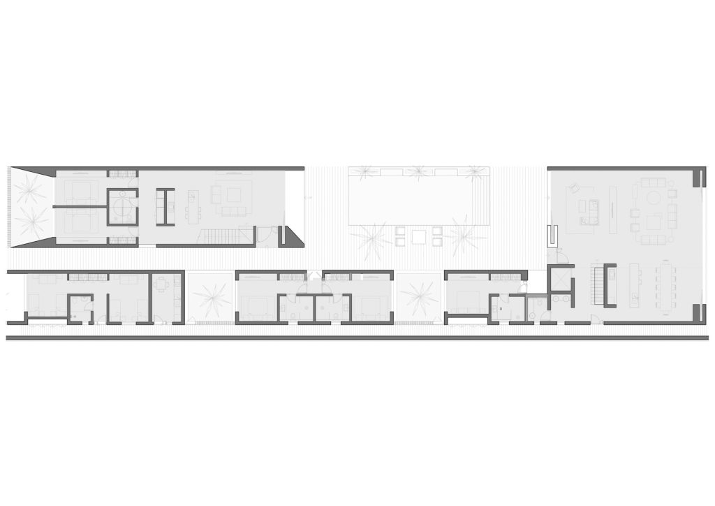
KitKat House, is a stunning contemporary beachside architectural masterpiece designed to cater to an extended family and their guests, redefining the concept of coastal living. This extraordinary residence spans an impressive 121 meters in length, with a modest 19.8 meters of sea frontage. The genius of KitKat House lies in its unique design, characterized by finger-like masses that gracefully intersect and shift in relation to one another, resulting in a harmonious blend of distinct functions and lush pockets of greenery interwoven with circulation passages.
The architectural challenge was formidable: how to maximize the potential of this typical beachside property by accommodating multiple residential units while ensuring each enjoys unobstructed sea, pool, or courtyard views. KitKat House rises to this challenge with panache. The main house, perched at the eastern edge, offers direct beachfront vistas and access. To the west, it seamlessly integrates with the central pool and courtyard, creating a seamless transition between indoor and outdoor living spaces. Further to the west, a second unit benefits from its own access to the central oasis. Two single-story guest suites nestled along the southern courtyard edge provide serene garden views and direct pool access, connected by a shaded circulation spine that artfully guides guests from the western parking area to the main beach house in the east, with all units in between.
KitKat House is not just a triumph of architecture but a model of sustainability and social consciousness. It reimagines multi-generational living within the constraints of restricted land parcels, striking a perfect balance between individual privacy and shared communal spaces. The design takes inspiration from the rich regional vernacular, incorporating elements like mini courtyards, water features, and cross-ventilation strategies. Sustainability is at its core, with locally produced brick cladding reducing environmental impact and fostering a connection to the community. KitKat House stands apart with its innovative design, harmonizing form and function while embracing the natural beauty of its beachside locale.
- Architect: AlHumaidhi Architects
- Photography: Nelson Garrido
- Location: Al-Zor, Kuwait
























