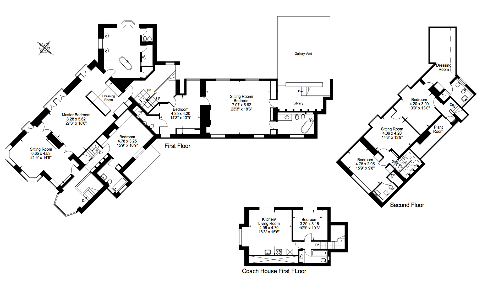
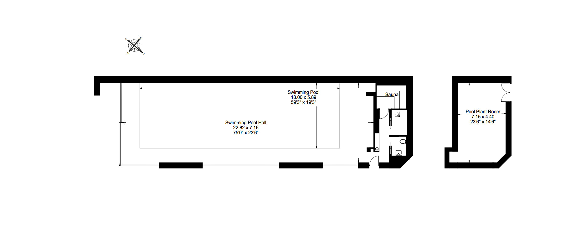
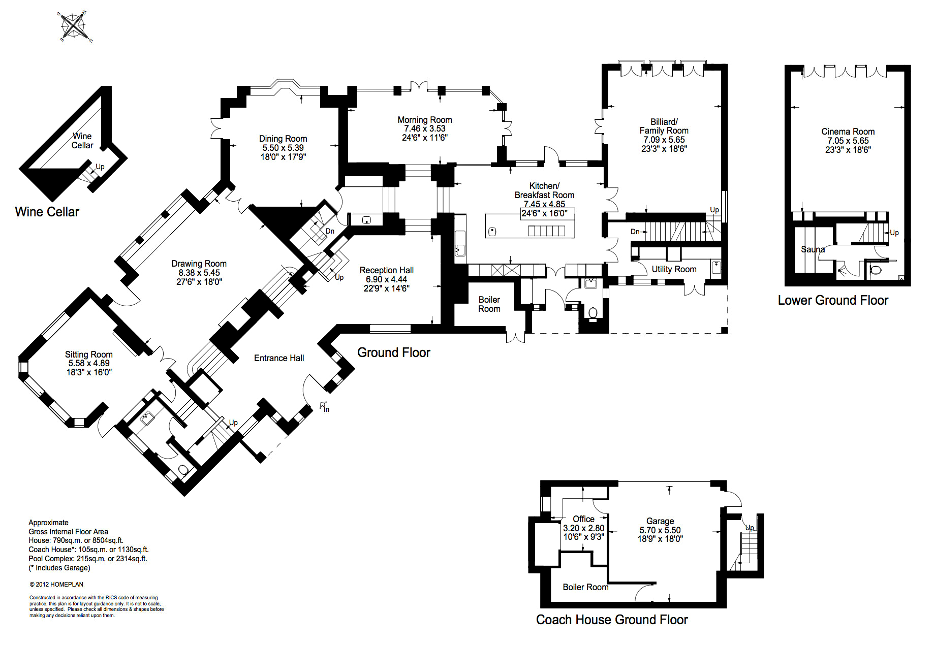
Floor Plans – John Lennon’s Former Kenwood Home – Weybridge, Surrey, England, UK The Pinnacle List Source Shuffle Attached to: John Lennon’s Former Kenwood Home – Weybridge, Surrey, England ๐ด๓ ง๓ ข๓ ฅ๓ ฎ๓ ง๓ ฟ, UK ๐ฌ๐ง