
- Name: House in Herne Bay
- Type: Modern Contemporary
- Bedrooms: 3
- Bathrooms: 5
- Levels: 3
- Built: 2013
The House in Herne Bay is a compelling luxury residence that integrates contemporary New Zealand ideals, design and construction, whilst maintaining much of the language and posture of the relaxing resort Villa. Sensationally located on a north-facing slope, looking out over Herne Bay towards the Waitamata harbour, the home was conceived with recognition of the significant heritage and character of the area.
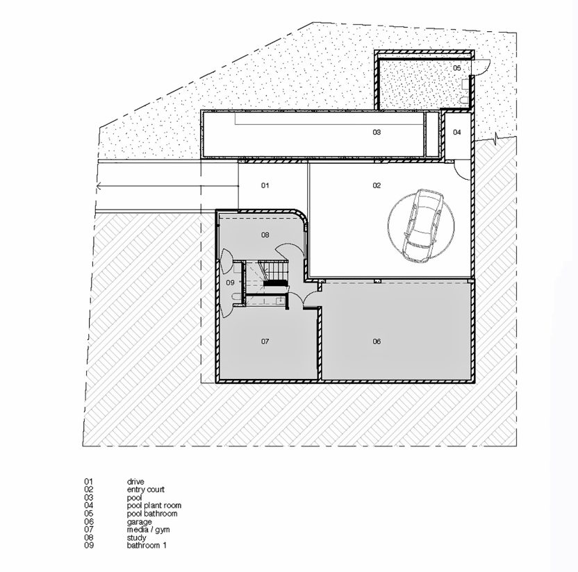
A rare opportunity for a contemporary re-conception of the Villa archetype which typifies the surrounds, this contemporary concrete construct is sculpturally formed over three levels with garaging excavated below and an upper level that sits recessively beneath a hipped roof with a mid-level that is boldly expressed by the horizontal composition of weatherboard impressed concrete fins. These fins abstract the traditional street verandah whilst aiding control of privacy and light into the spaces within.Β
The programme of the residence is arranged about a central northern positioned exterior core that orientates the house towards the sun, providing sensational outdoor living with views of the Waitamata beyond that create a vertical link between all levels of the dwelling. The uninterrupted transitions between interior spaces open to the exterior core provide a bespoke affluent living experience that is both grand yet intimate.
- Architect: Daniel Marshall Architects
- Photography: Simon Devitt
- Location: Herne Bay, Auckland, New Zealand
















