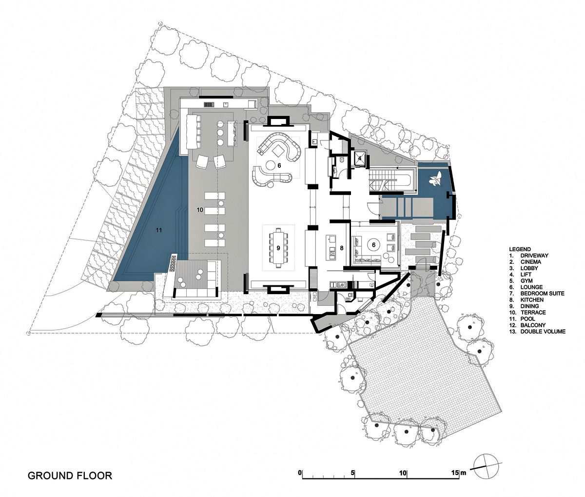
First Floor Plan – Head Road 1843 – Fresnaye, Cape Town, Western Cape, South Africa The Pinnacle List Source Shuffle Attached to: Head Road 1843 – Fresnaye, Cape Town, Western Cape, South Africa ๐ฟ๐ฆ