
- Name: CWN House
- Bedrooms: 4
- Bathrooms: 8
- Size: 18,836 sq. ft.
- Built: 2018
Set in Santana de Parnaíba, a picturesque city 40 kilometers from São Paulo’s bustling downtown, CVN House is a jewel of contemporary architecture within an exclusive gated community. This extraordinary residence graces a sprawling plot of 1,850 square meters, navigating a subtle six-meter incline to present a grandeur of 1,750 square meters spread over three levels. The design, an elegant L-shape, embraces a steel frame and stone facades to the south, providing a sense of grounded opaqueness, while to the north, it boasts expansive glass panels and brises, allowing soft, translucent light to grace the interiors.
Two axes ingeniously delineate the home’s spatial organization, emanating from its boomerang-like form. Along the wing parallel to the street, discover the social expanse and master suite, seamlessly integrated with the lush tropical garden meticulously crafted by Isabel Duprat. At the heart lies the double-height living area, a testament to modernist finesse, ensconced within the steel framework. From this vantage, glass and slatted wood panels create an open dialogue with the surroundings, while purposeful brise-soleil shields against the sun’s direct embrace. Upstairs, strategically framed vistas unveil themselves, offering panoramic views of the verdant landscape.
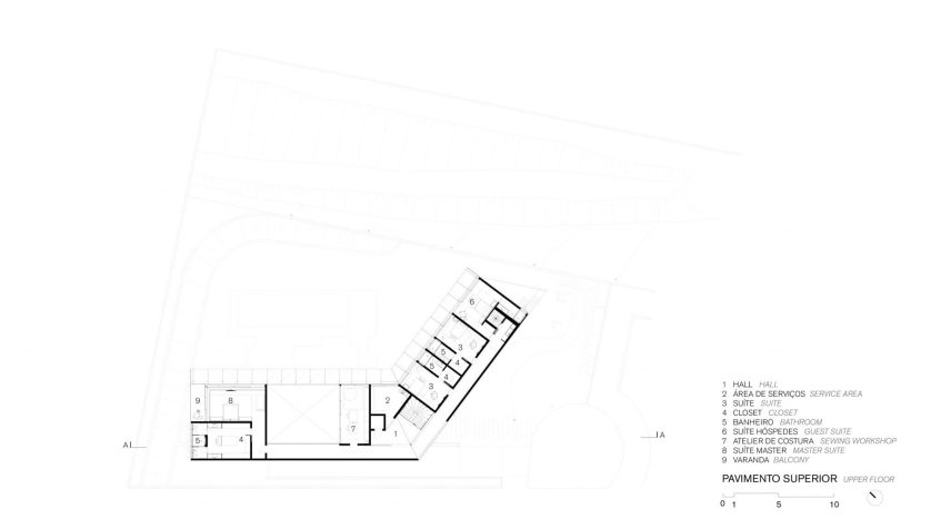
Ascend to the upper floor, where four suites beckon, each enjoying a unique interplay of privacy and garden views, elegantly framed by wooden brises-soleil. The master suite, a sanctum of repose, is discreetly situated on the right, accessed via a tranquil walkway, while the remaining suites are thoughtfully distributed along the east-west axis. Down below, a capacious basement houses a garage for up to five cars and essential technical areas, seamlessly blending form and function. Throughout, the material palette exudes warmth, with natural tones harmoniously illuminated by a meticulously curated lighting scheme. This residence is an epitome of architectural prowess, where form meets function in a ballet of harmonious design.
- Architect: Bernardes Arquitetura
- Photography: Leonardo Finotti
- Location: Santana de Parnaíba, São Paulo, Brazil









