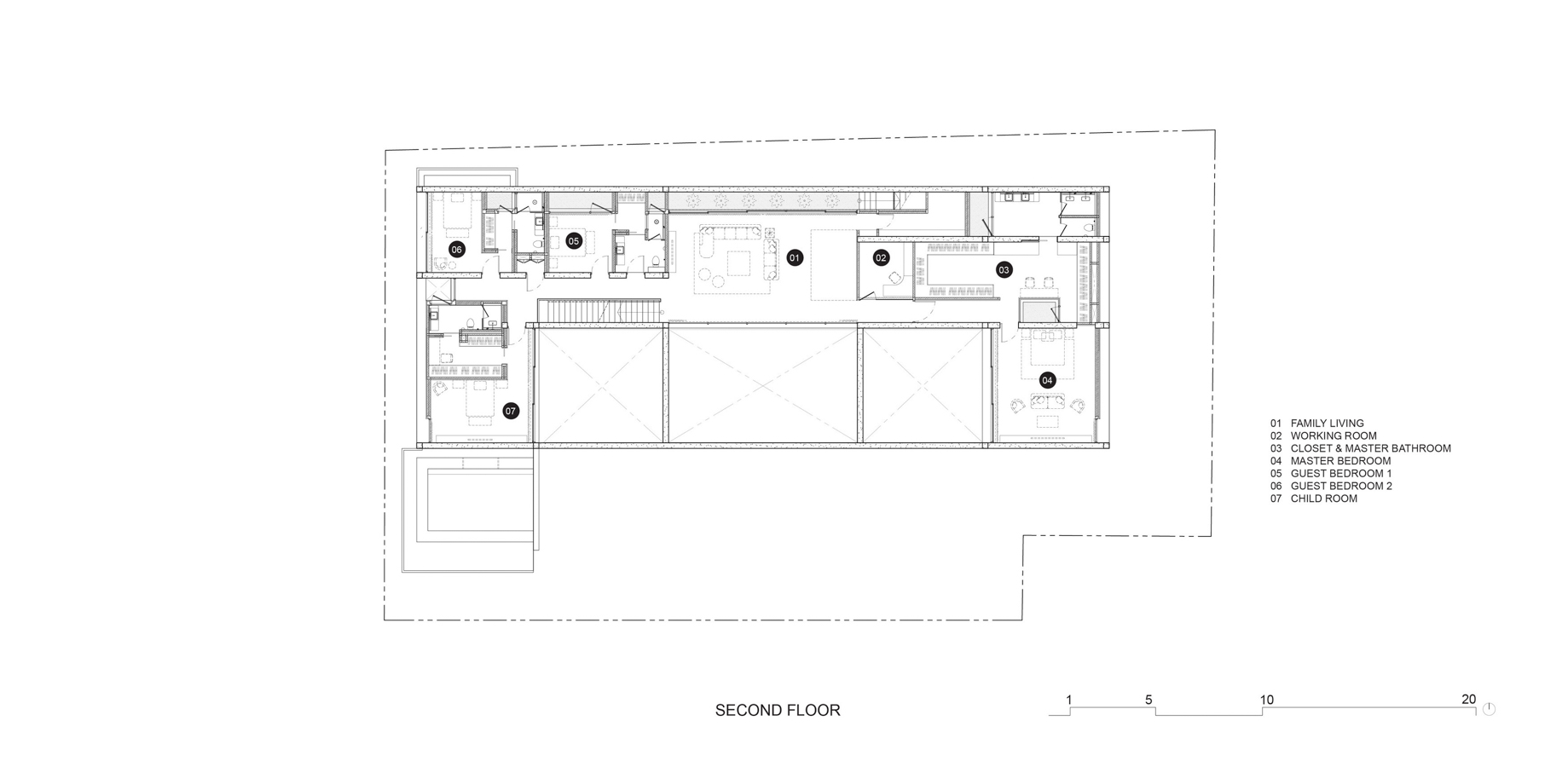
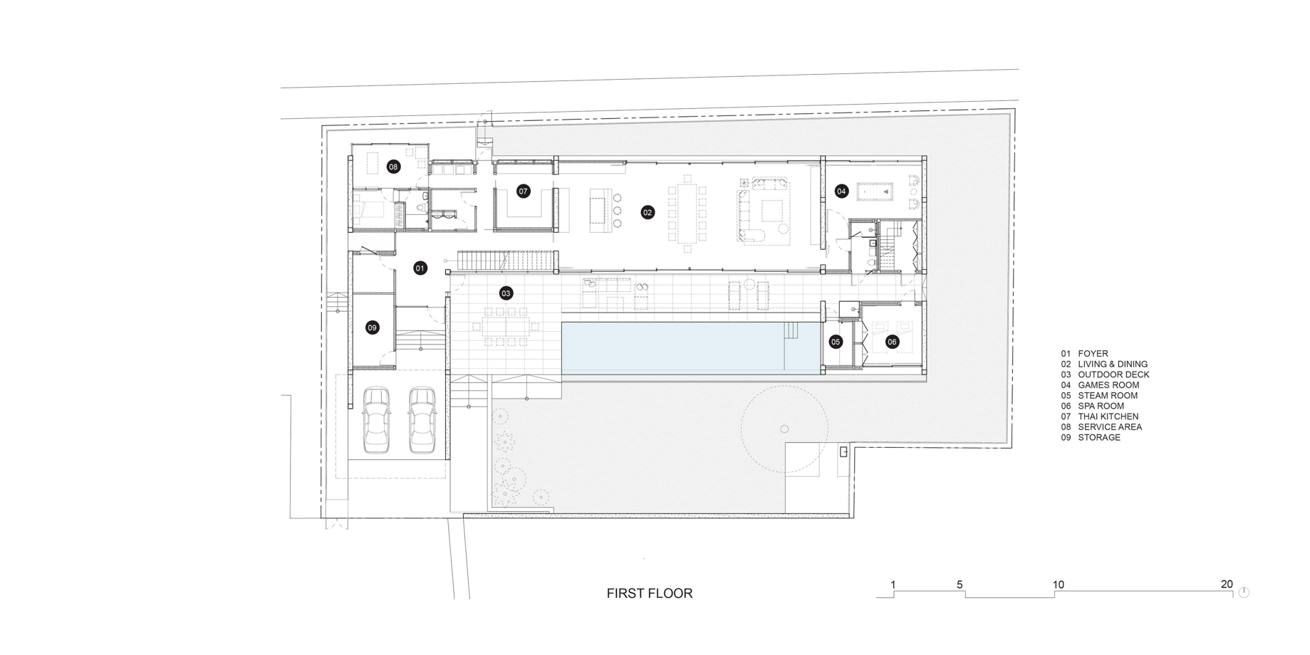
Second Floor Plan – Casa de Alisa Luxury Residence – Nonthaburi, Thailand The Pinnacle List Source Shuffle Attached to: Casa de Alisa Luxury Residence – Nonthaburi, Thailand 🇹🇭