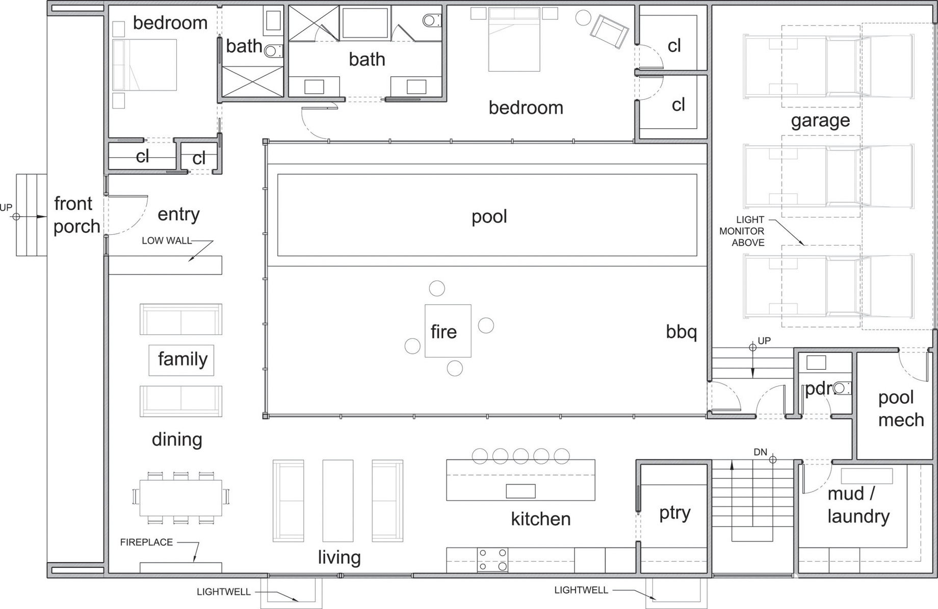
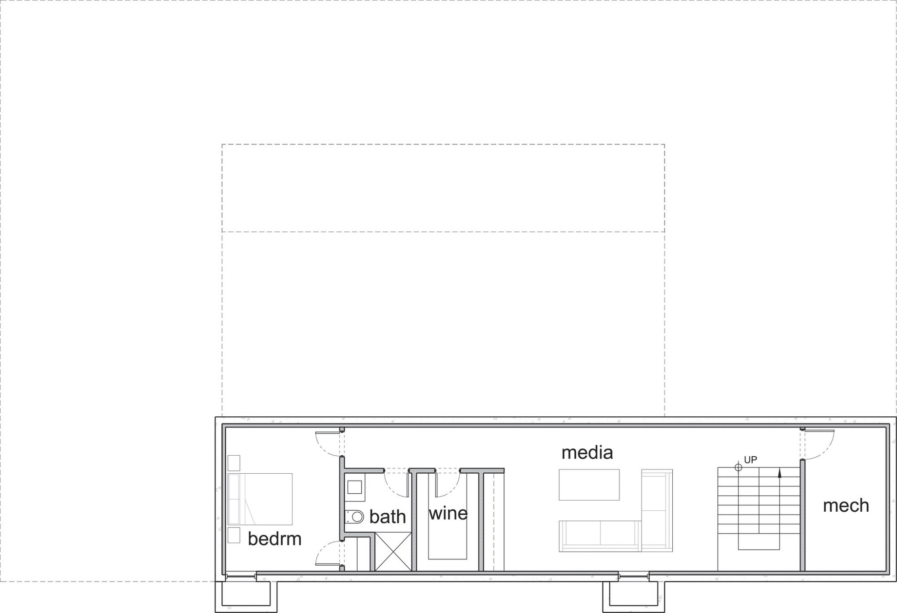
Brick City Courtyard House – Denver, CO, USA – 22 The Pinnacle List Source Shuffle Attached to: Brick City Courtyard House – Denver, CO, USA ๐บ๐ธ