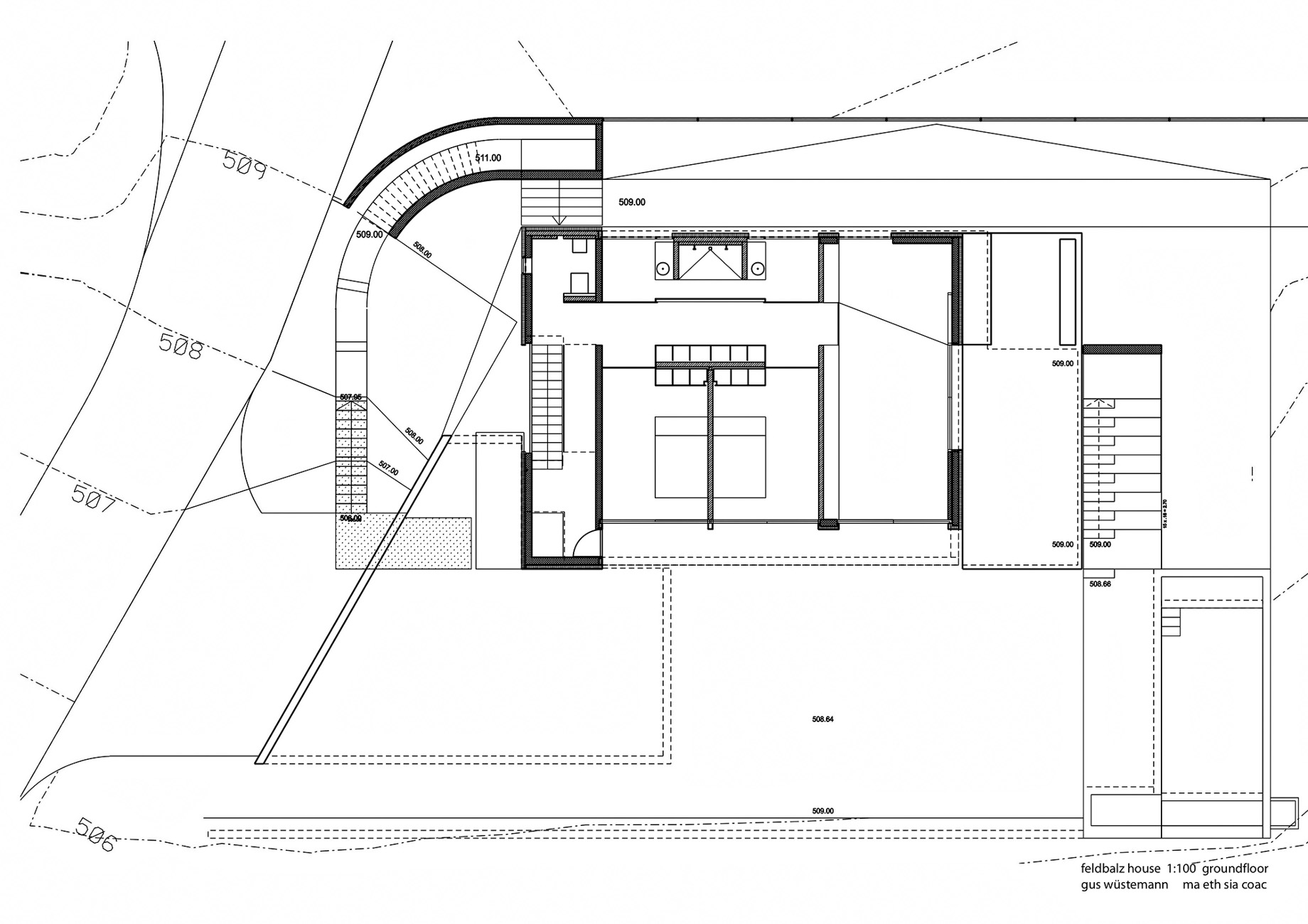
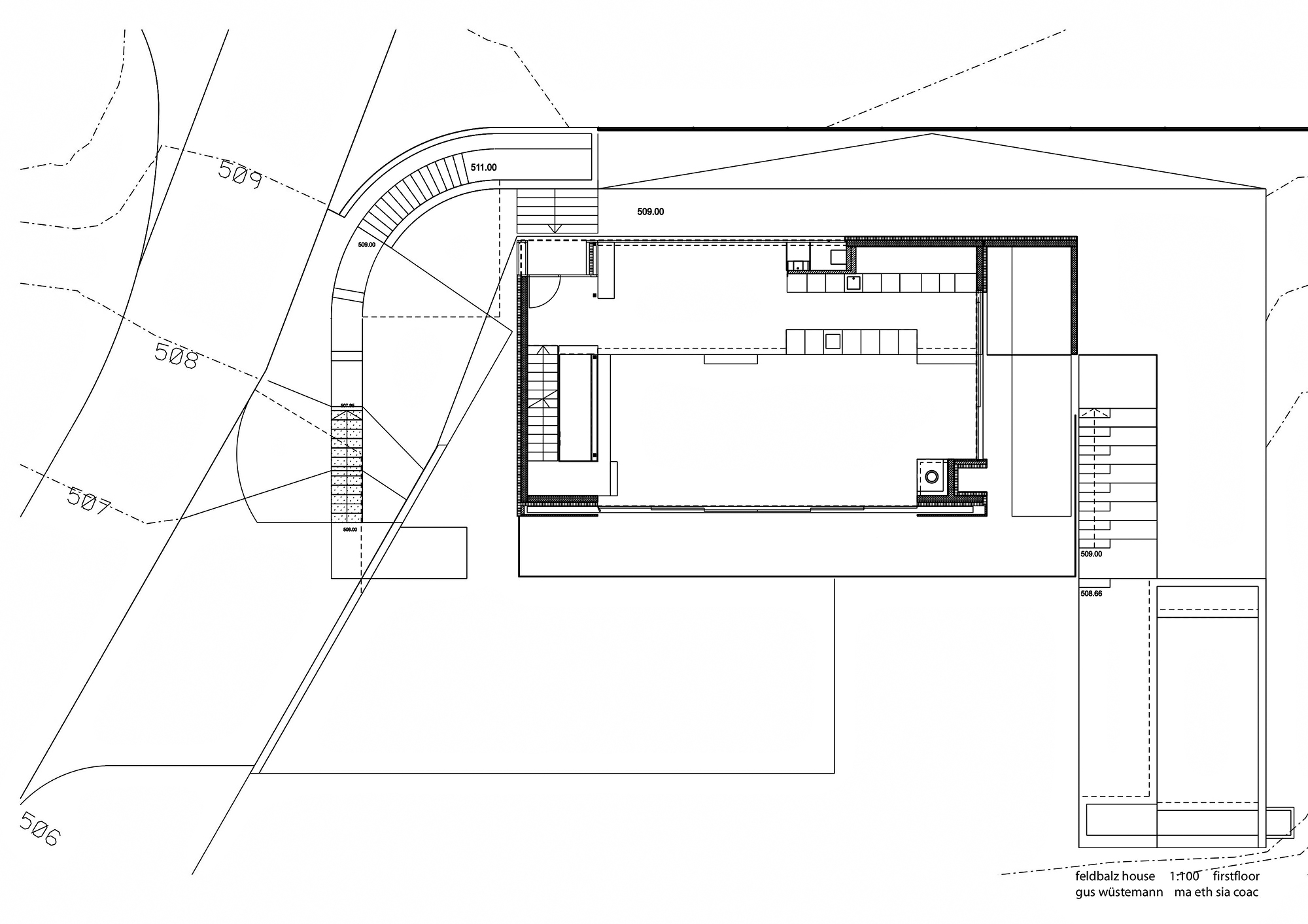
Floor Plans – Feldbalz House Luxury Residence – Zürichsee, Zürich, Switzerland – The Pinnacle List

Contact