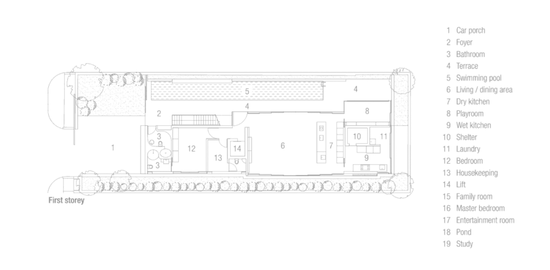
First Floor Plan – Discreetly Detached Luxury Home – Princess of Whales Rd, Singapore The Pinnacle List Source Shuffle Attached to: Discreetly Detached Luxury Home – Princess of Whales Rd, Singapore ๐ธ๐ฌ