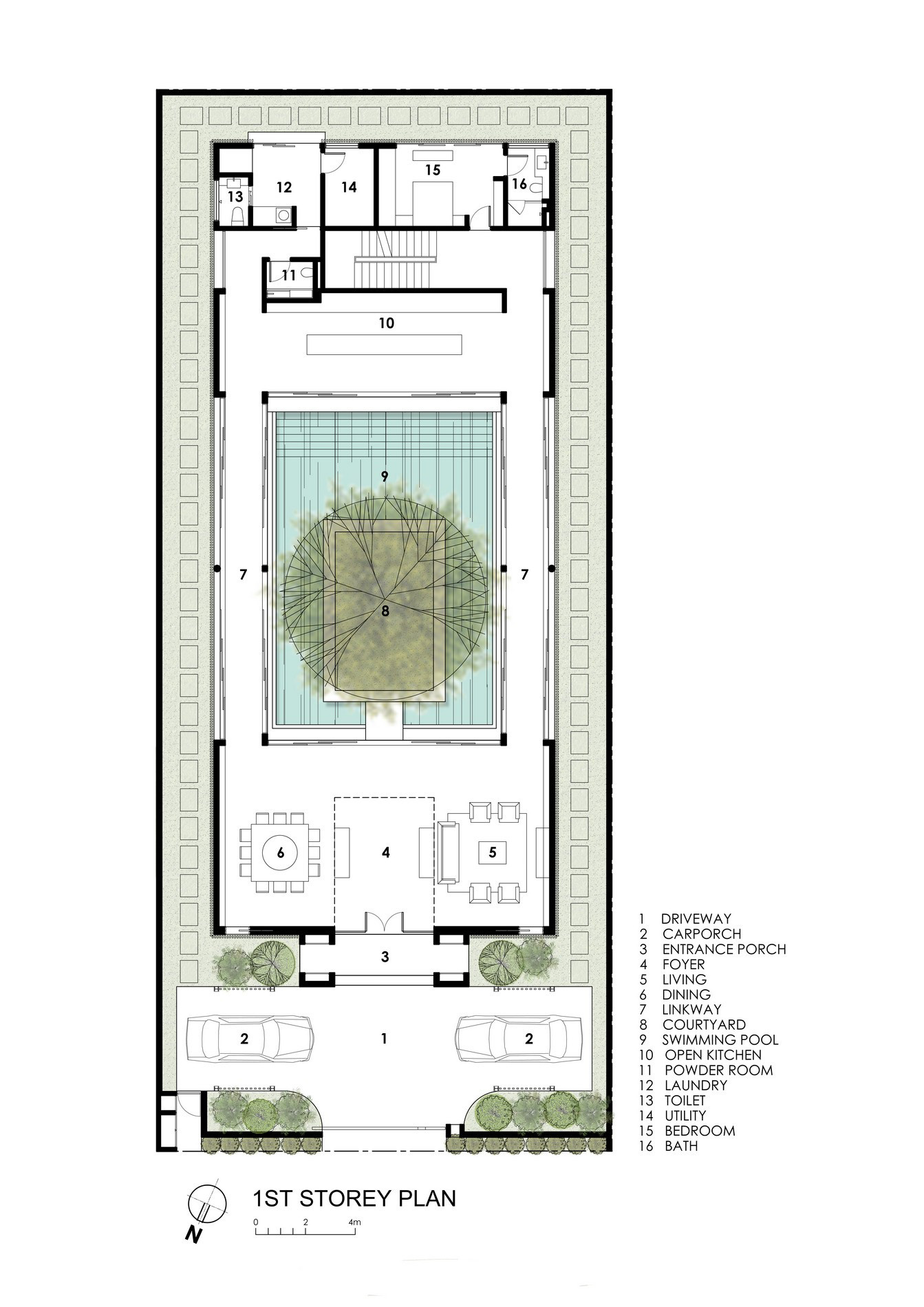
Second Floor Plan – Centennial Tree House Luxury Residence – Dunbar Walk, Singapore The Pinnacle List Source Shuffle Attached to: Centennial Tree House Luxury Residence – Dunbar Walk, Singapore πΈπ¬