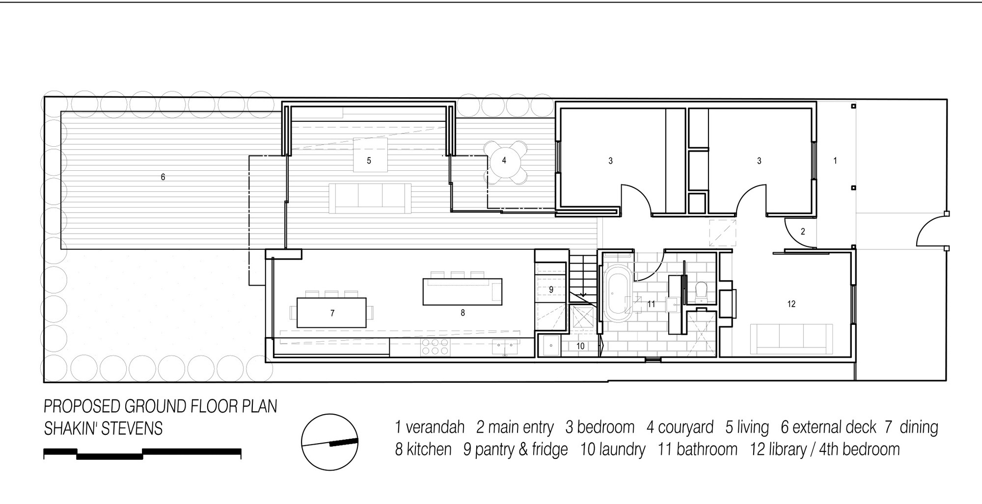
Floor Plans – Shakin Stevens Green Space House – Melbourne, Victoria, Australia The Pinnacle List Source Shuffle Attached to: Shakin’ Stevens Green Space House – Melbourne, Victoria, Australia ๐ฆ๐บ