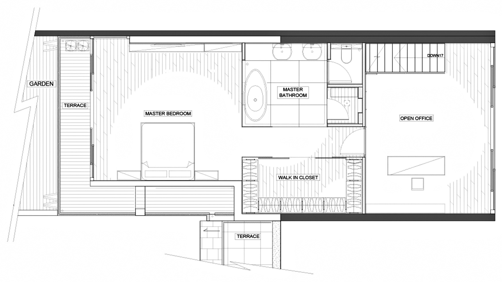
Floor Plans – Sai Kung Luxury Residence – New Territories, Hong Kong, China The Pinnacle List Source Shuffle Attached to: Sai Kung Luxury Residence – New Territories, Hong Kong ๐ญ๐ฐ, China ๐จ๐ณ